Use full screen for better viewing.

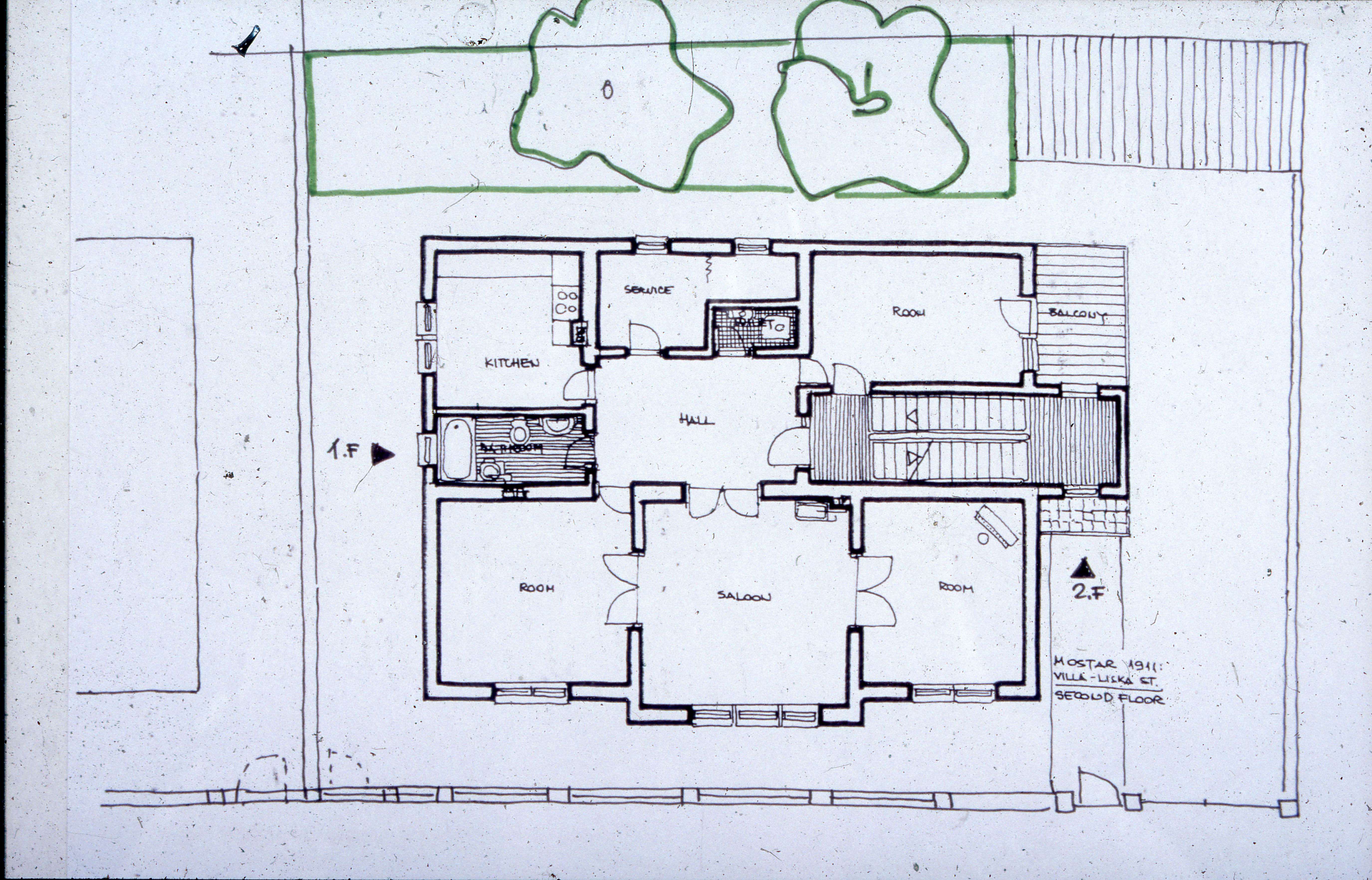
A plan of a house in the Liska Street in Mostar, 1911

Tarih

Yazarlar

Süreli Yayın başlığı

Süreli Yayın ISSN

Cilt Başlığı

Yayınevi

Özet

Açıklama

Alıntı

Koleksiyonlar

Endorsement

Review

Supplemented By

Referenced By